Bathroom Cad

Furnishing your floor plan is as easy as drag and drop.
Bathroom cad. Bathroom fittings free cad drawings. Our bathroom design cad details are uploaded regularly. Bathroom design volume 3 cad collections dwg.
Simply select the file or files to be downloaded and load them into your project. Bar stools cad collection dwg. Cad files cutout templates.
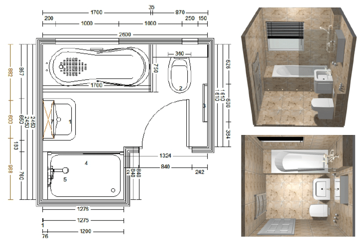
Download this bathroom design free 2d cad drawing 3d autocad models and 3ds max models including shower wc sink and dimensions. The following projects and dwg models will be presented in this section. You can choose from their templates edit it in 2d plan then convert it to a three dimensional view.
More than 60 cad blocks of bathroom fittings. Autocad 2004 dwg format 2011 max format. Sauna cabins in plan single and double sinks in plan and elevation view drawings of baths showers urinals toilets.
Urban design cad collections dwg. Our job is to design and supply the free autocad blocks people need to engineer their big ideas. Designing with kohler couldn t be easier.
This section contains the following autocad files. Edison lights cad collection dwg. Free cad blocks drafted by professional.
Our cad and 3d model drawings are purged to keep the files clean of any unwanted layers. High quality drawings made in the program of autocad public and residential bathrooms plumbing. 111 high quality sinks cad blocks in plan frontal and side elevation view.
Sinks in plan frontal and side elevation view cad blocks. W c sinks baths sowers urinals spas squat toilet mixers in plan and elevation view. Back to bathroom cad blocks.
Free drawings with sizes in the plan a section and in different projections. Bidet toilets shower shelves mirror cabinet mirrors rug laundry baskets hydromassage box acrylic bathtub sinks faucets shower trays toilet bowls sinks urinals and other equipment. If you re an architect an engineer or a draftsman looking for quality cads to use in your work you re going to fit right in here.
W c sinks baths sowers urinals spas in plan and elevation home. Add article to a folder. We have created for you high quality and exclusive blocks for the bathroom for free download.
We will help you create a comfortable beautiful and practical bathroom. Enjoy 399 bathroom design service 100 savings. Library bathroom cad block for you free.
Wood burning stoves cad collection dwg. Bathtubs toilets showers sinks bathroom plans public toilets and much more. Start downloading your free files.
Architectural design cad collections volume 2. No code needed to receive discount online. Virtual bathroom planner is a free bathroom remodel software which you can use to create 3d bathroom plans.